56 homes found in Whitney
For Sale
Gallery
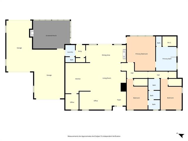
Description
Located on the #6 hole of the New Golf Course in gated White Bluff Resort, this beautiful German Schmear brick home sits on over half an acre with a fenced backyard overlooking a scenic pond. Outdoor features include a stunning underground heated pool and spa, pergola, and enclosed patio with a wood-burning fireplace, perfect for entertaining or relaxing year-round. Inside, the spacious living area centers around a stone electric fireplace and full home sound system. The chef’s kitchen offers a gas stove, warming drawer, Insinkerator for instant hot water, and built-in wine bar. The primary suite overlooks the pool and golf course pond, while the secondary bedrooms have walk-in closets and share a Jack-and-Jill bath with an oversized shower. Updates include roof (2023), foam insulation and mini-split in garage (2024), and new appliances, pool equipment, and HVAC components (2025). Enjoy exclusive access to resort amenities including two golf courses, four pools, tennis, marina, restaurants, parks, and so much more. Reach out to the agent for more information regarding this property and the amazing community we know as White Bluff.
Property details
Residential
List Price $549,000
Reduced $16000
$248 per SQFT
$1500 Semi-Annual HOA Fee
2,218 sqft
3 bedrooms
3 bathrooms
2 garages
Built in 2009
One stories
0.52 acres
                                               
Additional details
School District: Whitney ISD
Elementary: Whitney
Middle or Junior School: Whitney
Junior High School: Whitney
High School:
MLS Number: 21132522
Subdivision: White Bluff #22
Heating: Central,Fireplace(s),Propane
Cooling: Ceiling Fan(s),Central Air,Electric,Roof Turbine(s),Other
Flooring: Concrete
                                                                                           
                                       
                                       
Direction
Use gps, google maps works the best
Listed by Real Broker, LLC
The database information herein is provided from and copyrighted by the North Texas Real Estate Information Systems, Inc. NTREIS data may not be reproduced or redistributed and is only for people viewing this site. All information provided is deemed reliable but is not guaranteed and should be independently verified. The advertisements herein are merely indications to bid and are not offers to sell which may be accepted. All properties are subject to prior sale or withdrawal. All rights are reserved by copyright. Copyright © NTREIS 2026. All Rights Reserved.
Martha Cordaro
469-328-9550
800-424-5088
TREC # 0550219
Speak:
Enter code: